Bazilika Bohosudov
Geodetické zaměření a vyhotovení digitální dokumentace stávajícího stavu Baziliky Panny Marie Bolestné v Bohosudově.
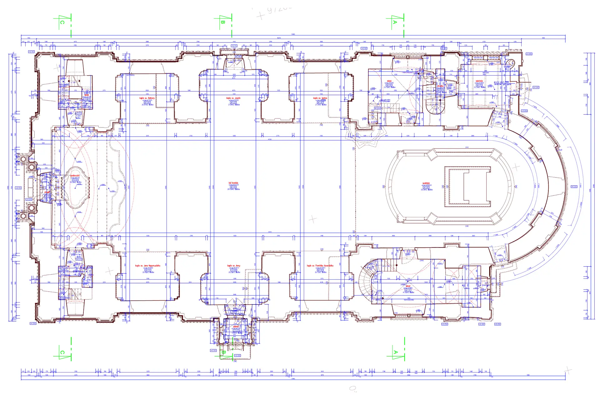
O projektu
Projekt dokumentoval Baziliku Panny Marie Bolestné v Bohosudově, kulturní památku (č. 1000155768). V letech 2018 až 2023 byla provedena kompletní digitální dokumentace zachycující architektonické prvky, umělecká díla a stav konstrukce.
Dokumentace slouží jako základ pro plánování obnovy a představuje vysoký standard památkové péče v České republice.





Další reference

Skenování výrobních linek.

Dokumentace barokního paláce.

Zaměření zámeckého areálu.
Máte projekt, se kterým vám můžeme pomoci?
Kontaktujte nás pro nezávaznou konzultaci. Odpovídáme do 48 hodin.